Calcula el tamaño de tu baño
Tu talla de baño es la ""
Tu baño es demasiado grande para nuestros packs, por favor contacta con nosotros.
Selecciona el tamaño de tu baño











Cisterna empotrada Kit completo Rapid SL Grohe. Bastidor y pulsador SUPERSTEEL con anclajes
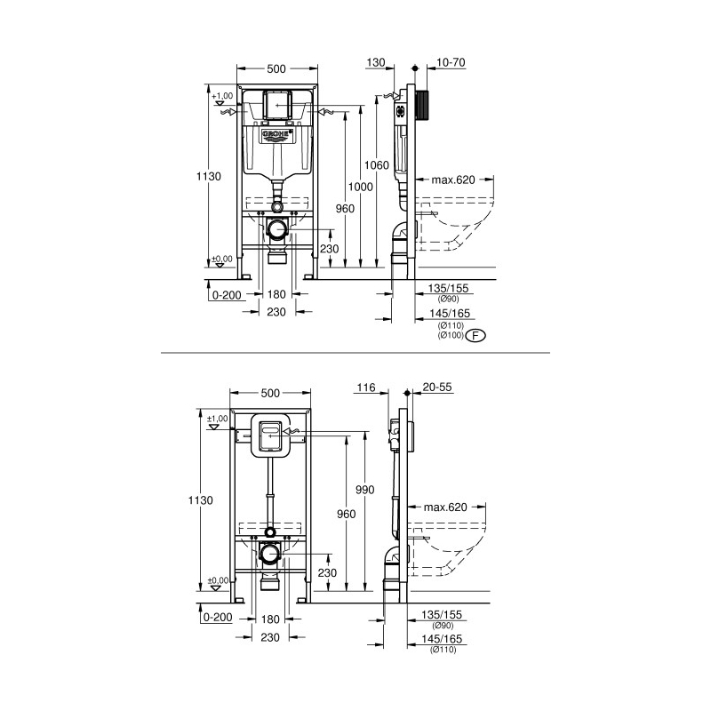
Kit de cisterna empotrada Grohe Rapid SL con bastidor de acero certificado y pulsador SUPERSTEEL (38732DC0). Incluye anclajes, cisterna GD 2 de doble descarga y garantía de 5 años. Instalación rápida y silenciosa con la calidad Grohe. Garantía de 5 años.
Descripción
El Kit de cisterna empotrada Grohe Rapid SL con pulsador SUPERSTEEL es la elección ideal para instalar inodoros suspendidos de forma segura, duradera y con un diseño elegante.
Incluye bastidor oculto de acero con recubrimiento epoxy de 1,13 m regulable hasta 20 cm, certificado por TÜV con una capacidad de carga de hasta 400 kg. Viene equipado con tornillos de fijación (ref. 3855800M) y cisterna GD 2 de doble descarga (6 y 9 litros), que permite un ahorro de agua de hasta el 50%.
El sistema integra la tecnología Grohe Whisper, que reduce el ruido de la descarga transmitido a las paredes, y el innovador sistema QuickFix con ToolFree, que simplifica el montaje sin necesidad de herramientas específicas.
Su módulo empotrado es apto para paredes de carga o tabiques reforzados, ofreciendo máxima estabilidad y facilidad de instalación. El pulsador SUPERSTEEL aporta un acabado moderno y resistente, ideal para baños de diseño contemporáneo.
Grohe es una empresa líder en el mercado de la grifería y sanitarios a nivel mundial. Su gama de productos se caracteriza por una calidad extraordinaria en todos los aspectos, es garantía de robustez y seriedad sea cual sea el producto escogido. Materiales de primera calidad, fabricación superior, innovación en continúo y diseños elaborados con tecnologías de vanguardia son la tarjeta de presentación de esta marca.
- Cisterna empotrada GD 2, 6-9 litros y bastidor
- Montaje en tabique con montantes y/o delante de una pared resistente
- Premontado para montaje en seco
- Homologado por TUV
- Distancia entre pernos de 180 y 230 mm
- Codo de desagüe de PP Ø 90 mm
- Incluye 2 pernos con tuercas para colgar la taza
- Reductor PP Ø 90/110 mm
- Cisterna GD2, 6 - 9 l, contiene las siguientes características:
- Ajuste de fábrica a 6l. y 3l.
- Válvula de descarga neumática AV1 que ofrece dos opciones: Dual Flush o Descarga única.
- 4 entradas de conexión: izquierda, derecha, por detrás o superior.
- Silencioso, grupo acústico I
- Aislada contra condensaciones
- Sin necesidad de herramientas para la instalación de la alimentación
- Montaje vertical u horizontal del pulsador
- Para la instalación en la pared, incluye los anclajes 38 558 00M