Calcula el tamaño de tu baño
Tu talla de baño es la ""
Tu baño es demasiado grande para nuestros packs, por favor contacta con nosotros.
Selecciona el tamaño de tu baño











BASTIDOR ROCA DUPLO ONE, PACK CISTERNA EMPOTRADA Y PULSADOR PL7 NEGRO MATE
Conjunto de Cisterna para empotrar y bastidor Roca Duplo One + pulsador ROCA PL7 DUAL (ONE) Negro mate doble descarga ahorro.
Descripción
Este conjunto de cisterna y bastidor Roca + pulsador negro mate ROCA aporta una línea funcional para un acabado minimalista en su baño. Diseño simple, fácil mantenimiento y limpieza y rápida instalación. Compuesto de:
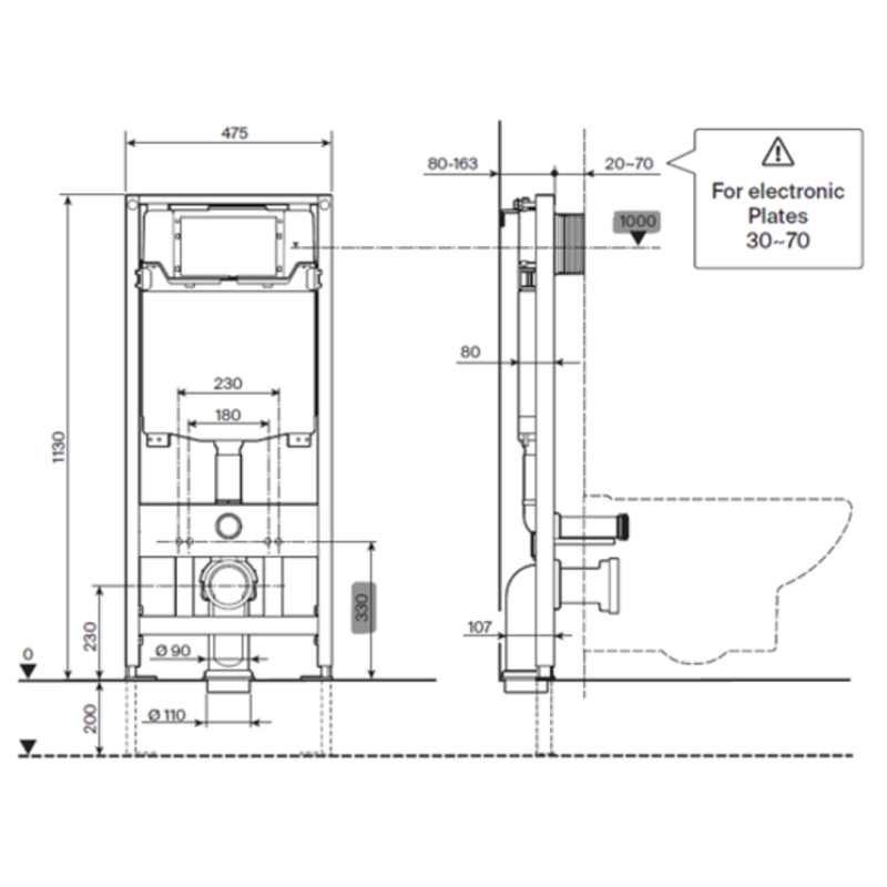
-Cisterna empotrada DUPLO WC ONE - Bastidor con cisterna empotrable de doble descarga para inodoro suspendido.
CARACTERÍSTICAS:
- Distancia axial de 180 y 230 mm.
- Codo de 90 ø/ 110 ø.
- Perfil metálico con capacidad de resistencia de 400 kg.
- Patas ajustables de 0-200 mm con sistema de freno.
- Conexiones hidráulicas superiores.
- Conexión del codo: DN100 (110 mm), DN90 (90 mm)
- Posición de la placa de accionamiento: Frontal
- Posición de la toma de agua: Superior
- Profundidad del tanque (mm): 80
- Profundidad mínima de fijación (mm): 107
- Rango de presión dinámico: 0,1 - 10 Bar
- Tipo de descarga predeterminado: Doble descarga 3/6 litros
-Placa de accionamiento PL7 DUAL (ONE) negro mate con descarga dual. No es necesario la utilización de herramientas para su instalación.
Roca, una de las marcas nacionales más importantes y reconocidas del mundo del baño, siempre ha sido sinónimo de calidad y buen diseño. Desde sus series más clásicas hasta sus conceptos más innovadores, todos los productos fabricados por Roca tienen en común la funcionalidad y practicidad, buscando siempre aportar un extra de confort y comodidad.