Calcula el tamaño de tu baño
Tu talla de baño es la ""
Tu baño es demasiado grande para nuestros packs, por favor contacta con nosotros.
Selecciona el tamaño de tu baño











Pack GROHE Rapid SL 5 en 1 con WC suspendido Bau Ceramic y pulsador cromado
El pack GROHE Rapid SL 5 en 1 incluye todo lo necesario para instalar un WC suspendido con diseño moderno y funcional: bastidor con cisterna empotrada, inodoro Bau Ceramic sin borde, asiento amortiguado, pulsador cromado y kit de montaje. Una solución completa con calidad alemana, fácil instalación y máxima higiene.
Descripción
El conjunto GROHE Rapid SL 5 en 1 combina diseño, innovación y facilidad de instalación. Incluye todo lo necesario para montar un WC suspendido con cisterna empotrada, aportando estilo, comodidad y mayor higiene a tu baño.
¿Qué incluye este pack?
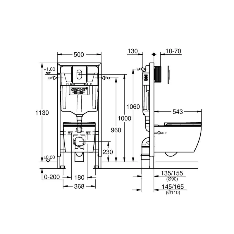
Bastidor GROHE Rapid SL con cisterna empotrada.
Inodoro suspendido Bau Ceramic con diseño rimless (sin borde) para mayor higiene.
Asiento con tapa de cierre amortiguado y extraíble para limpieza sencilla.
Pulsador Arena Cosmopolitan en acabado cromo GROHE Long-Life brillante y duradero.
Kit de montaje: soportes murales y set de protección acústica.
Principales ventajas
Instalación sencilla: compatible con paredes sólidas o tabiques ligeros.
Estabilidad y seguridad: bastidor certificado para soportar más de 400 kg.
Máxima higiene: diseño sin reborde que evita acumulación de bacterias.
Ahorro de agua: sistema de doble descarga (3/6 litros) con opción de interrupción.
Silencio garantizado: tecnología GROHE Whisper reduce el ruido de la descarga.
Mantenimiento práctico: conexión sin herramientas del tubo flexible, eje de revisión y suministro de agua.
Características técnicas
Sistema GROHE Rapid SL con cisterna empotrada de doble descarga.
WC suspendido Bau Ceramic con faldón liso y tapa de caída amortiguada.
Pulsador Arena Cosmopolitan en cromo brillo.
Tecnología de ahorro de agua (hasta un 50% menos de consumo).
Set de insonorización incluido.
El aliado perfecto para un baño funcional
Gracias a su diseño suspendido, el WC deja el suelo libre, facilitando la limpieza y aportando sensación de amplitud. Además, su sistema rimless mejora la higiene diaria y el cierre suave aporta seguridad y confort en cada uso.
Compra ahora el pack GROHE Rapid SL 5 en 1 y disfruta de un baño moderno, higiénico y duradero con instalación rápida y sencilla.
Sobre GROHE
GROHE es un fabricante alemán líder mundial en grifería y soluciones de baño. Reconocida por su innovación, diseño y fiabilidad, la marca destaca por la calidad de sus materiales y la incorporación de tecnologías que garantizan eficiencia en agua y energía. Con décadas de experiencia, GROHE se ha convertido en sinónimo de durabilidad, estilo y confianza en proyectos residenciales y profesionales.