BASTIDOR ROCA DUPLO PACK CISTERNA EMPOTRADA Y PULSADOR PL7 BLANCO MATE CON INODORO SUSPENDIDO KALIOPA NEGRO MATE 49cm AQUA
Conjunto de cisterna para empotrar y bastidor Roca Duplo, pulsador Roca PL7 Dual (ONE) blanco mate e inodoro suspendido Kaliopa Negro mate 49cm rimless con tapa anticaída. Incluye anclajes para montaje.
Descripción
El inodoro Kaliopa de AQUA es una opción sofisticada y funcional para cualquier cuarto de baño. Fabricado con cerámica de alta calidad y diseñado con tecnología Rimless, garantiza una limpieza sencilla y una higiene superior. Incluye un asiento Soft-close para un cierre suave y silencioso, mientras que su sistema de drenaje horizontal asegura un uso eficiente del agua y un rendimiento excelente.
Con dimensiones compactas de 37cm de ancho x 37cm de alto x 49cm de profundo y un peso ligero, es ideal para espacios pequeños. El inodoro Kaliopa combina estilo, practicidad y durabilidad para satisfacer las necesidades de cualquier hogar.
Placa de accionamiento PL7 DUAL (ONE) blanco mate con descarga dual. No es necesario la utilización de herramientas para su instalación.
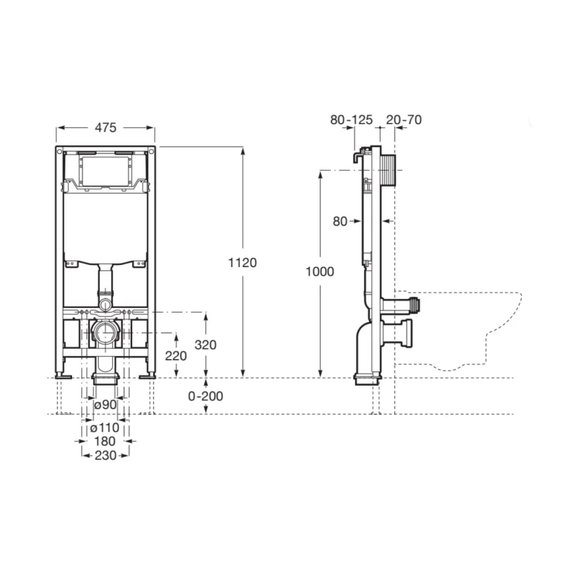
Cisterna empotrada DUPLO WC ONE - Bastidor con cisterna empotrable de doble descarga para inodoro suspendido.
CARACTERÍSTICAS:
- Distancia axial de 180 y 230 mm.
- Codo de 90 ø/ 110 ø.
- Perfil metálico con capacidad de resistencia de 400 kg.
- Patas ajustables de 0-200 mm con sistema de freno.
- Conexiones hidráulicas superiores.
- Conexión del codo: DN100 (110 mm), DN90 (90 mm)
- Posición de la placa de accionamiento: Frontal
- Posición de la toma de agua: Superior
- Profundidad del tanque (mm): 80
- Profundidad mínima de fijación (mm): 107
- Rango de presión dinámico: 0,1 - 10 Bar
- Tipo de descarga predeterminado: Doble descarga 3/6 litros
Nuestra marca propia de productos para el baño Aqua te ofrece una gama de productos con la filosofía Ceramicalia. Analizamos continuamente el mercado en busca de los productos con mejor relación calidad/precio y te los ofrecemos. Sólo los productos que cumplen nuestros requisitos (calidad de materiales y construcción, prestaciones de alta gama y última generación, diseños modernos y funcionales) son merecedores de venderse bajo nuestra marca.
Roca, una de las marcas nacionales más importantes y reconocidas del mundo del baño, siempre ha sido sinónimo de calidad y buen diseño. Desde sus series más clásicas hasta sus conceptos más innovadores, todos los productos fabricados por Roca tienen en común la funcionalidad y practicidad, buscando siempre aportar un extra de confort y comodidad.











