BASTIDOR ROCA DUPLO PACK CISTERNA EMPOTRADA Y PULSADOR PL1 BL BR CON INODORO SUSPENDIDO ROUND SMART BL BR TOR3 TAPA ENV.MARCA KP
Conjunto de cisterna para empotrar y bastidor Roca Duplo, pulsador Roca PL1 Dual (ONE) Blanco brillo e inodoro suspendido Round Smart Tornado 3.0 marca Koller Pool de 52cm con asiento Soft Close y tapa envolvente en color blanco brillo. Incluye anclajes para montaje.
Descripción
El inodoro Round Smart Tornado 3.0 marca Koller Pool en blanco brillo es una elección elegante y práctica para cualquier baño, fabricado en cerámica de alta calidad, ofrece facilidad de limpieza y una higiene óptima. Incluye asiento Soft-close con tapa envolvente para un cierre suave y silencioso.
La tecnología Tornado 3.0, es un sistema de descarga avanzada diseñado para mejorar la eficiencia de la limpieza y el uso de agua. Esta tecnología utiliza un sistema de descarga sin borde que genera un fuerte remolino de agua, conocido como descarga Tornado. Este remolino asegura una limpieza completa y profunda del inodoro mientras es más silencioso (aproximadamente un 40% menos de ruido) que los sistemas de descarga tradicionales.
Con dimensiones 35.5 x 37 x 52 cm el inodoro Koller Pool Round Smart combina estilo, funcionalidad y durabilidad para satisfacer las necesidades de cualquier hogar.
El paquete incluye todos los componentes necesarios para instalar fácilmente en la cisterna empotrada.
Placa de accionamiento Roca PL1 DUAL (ONE) Blanco Brillo con descarga dual. No es necesario la utilización de herramientas para su instalación.
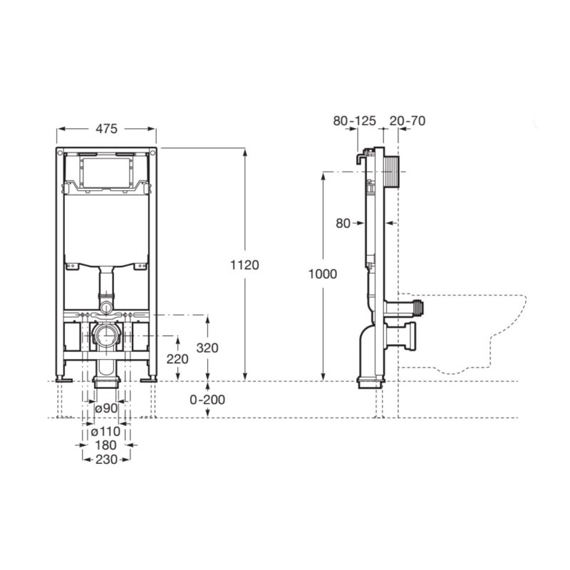
Cisterna empotrada Roca DUPLO WC ONE - Bastidor con cisterna empotrable de doble descarga para inodoro suspendido.
CARACTERÍSTICAS:
- Distancia axial de 180 y 230 mm.
- Codo de 90 ø/ 110 ø.
- Perfil metálico con capacidad de resistencia de 400 kg.
- Patas ajustables de 0-200 mm con sistema de freno.
- Conexiones hidráulicas superiores.
- Conexión del codo: DN100 (110 mm), DN90 (90 mm)
- Posición de la placa de accionamiento: Frontal
- Posición de la toma de agua: Superior
- Profundidad del tanque (mm): 80
- Profundidad mínima de fijación (mm): 107
- Rango de presión dinámico: 0,1 - 10 Bar
- Tipo de descarga predeterminado: Doble descarga 3/6 litros
Actualización de fabricación (ROCA):
ROCA ha actualizado recientemente el proceso de producción del modelo DUPLO, introduciendo ligeras variaciones respecto a versiones anteriores. Estos cambios afectan a la ficha técnica y a algunos elementos constructivos, como las patas, que pasan a ser de plástico técnico de alta resistencia, sin afectar a la funcionalidad, compatibilidad ni prestaciones del producto.
Koller Pool introduce una perspectiva innovadora en los productos sanitarios europeos de primera calidad. La línea de productos sanitarios Koller Pool abarca una amplia variedad de elementos cómodos y prácticos que combinan perfectamente con el diseño moderno y único de su baño.
Roca, una de las marcas nacionales más importantes y reconocidas del mundo del baño, siempre ha sido sinónimo de calidad y buen diseño. Desde sus series más clásicas hasta sus conceptos más innovadores, todos los productos fabricados por Roca tienen en común la funcionalidad y practicidad, buscando siempre aportar un extra de confort y comodidad.










