BASTIDOR ROCA DUPLO ONE PACK CISTERNA EMPOTRADA Y PULSADOR PL7 NEGRO MATE CON INODORO BL SUSPENDIDO RIM-EX ROCA ONA
Este conjunto se compone de una cisterna para empotrar y bastidor Roca Duplo One, pulsador ROCA PL7 DUAL (ONE) negro mate doble descarga ahorro e inodoro ROCA ONA rimless con tapa soft close.
Descripción
Este conjunto de cisterna y bastidor Roca, pulsador negro mate ROCA e inodoro Roca Ona con fondo de 48 cm aporta una línea limpia y elegante al baño. Diseño simple, fácil mantenimiento y limpieza y rápida instalación. Compuesto de:
Placa de accionamiento PL7 DUAL (ONE) negro mate con descarga dual. No es necesario la utilización de herramientas para su instalación.
Inodoro suspendido Roca Ona sin reborde (Rimless), fijaciones invisibles y asiento tapa anticaída (softclose). El material del inodoro es de porcelana sanitaria apto para espacios reducidos. Fácil de limpiar gracias al sistema sin brida.
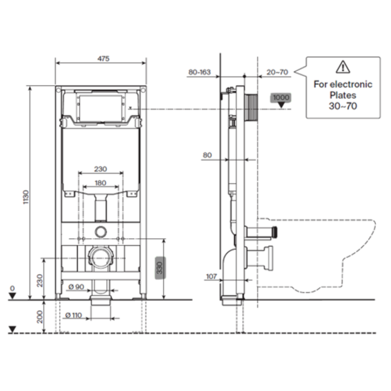
Cisterna empotrada DUPLO WC ONE - Bastidor con cisterna empotrable de doble descarga para inodoro suspendido.
CARACTERÍSTICAS:
- Distancia axial de 180 y 230 mm.
- Codo de 90 ø/ 110 ø.
- Perfil metálico con capacidad de resistencia de 400 kg.
- Patas ajustables de 0-200 mm con sistema de freno.
- Conexiones hidráulicas superiores.
- Conexión del codo: DN100 (110 mm), DN90 (90 mm)
- Posición de la placa de accionamiento: Frontal
- Posición de la toma de agua: Superior
- Profundidad del tanque (mm): 80
- Profundidad mínima de fijación (mm): 107
- Rango de presión dinámico: 0,1 - 10 Bar
- Tipo de descarga predeterminado: Doble descarga 3/6 litros
Actualización de fabricación (ROCA):
ROCA ha actualizado recientemente el proceso de producción del modelo DUPLO, introduciendo ligeras variaciones respecto a versiones anteriores. Estos cambios afectan a la ficha técnica y a algunos elementos constructivos, como las patas, que pasan a ser de plástico técnico de alta resistencia, sin afectar a la funcionalidad, compatibilidad ni prestaciones del producto.
Roca, una de las marcas nacionales más importantes y reconocidas del mundo del baño, siempre ha sido sinónimo de calidad y buen diseño. Desde sus series más clásicas hasta sus conceptos más innovadores, todos los productos fabricados por Roca tienen en común la funcionalidad y practicidad, buscando siempre aportar un extra de confort y comodidad.










