BASTIDOR ROCA DUPLO CON CISTERNA EMPOTRADA, PULSADOR PL1 CROMO BR, INODORO SUSPENDIDO BL ROCA MERIDIAN 48CM
Este conjunto se compone del inodoro Roca Meridian de 48cm rimless en color blanco con tapa amortiguada, pulsador doble cromo brillo y cisterna con bastidor oculto Roca Duplo. Incluye anclajes para montaje.
Descripción
El inodoro Meridian de Roca es un inodoro compacto suspendido con salida horizontal y sistema de descarga de arrastre. Dimensiones: 360 x 480 x 400 mm (LONGITUD, ANCHO, ALTURA). Incluye tapa y asiento con cierre soft-close.
El paquete incluye todos los componentes necesarios para instalar fácilmente en la cisterna empotrada.
Placa de accionamiento PL1 DUAL (ONE) Cromo Brillo con descarga dual. No es necesario la utilización de herramientas para su instalación.
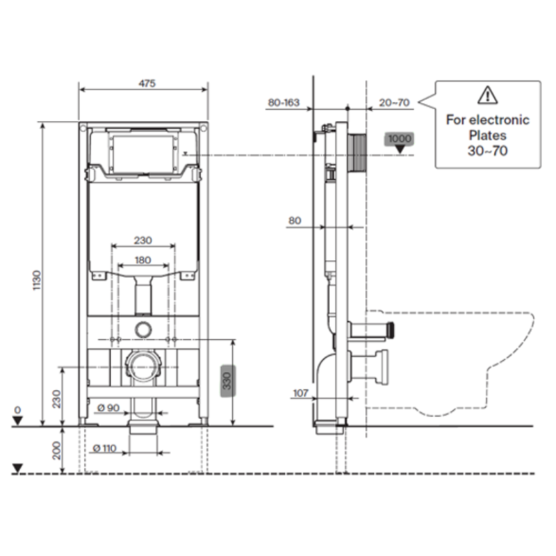
Cisterna empotrada DUPLO WC ONE - Bastidor con cisterna empotrable de doble descarga para inodoro suspendido.
CARACTERÍSTICAS:
- Distancia axial de 180 y 230 mm.
- Codo de 90 ø/ 110 ø.
- Perfil metálico con capacidad de resistencia de 400 kg.
- Patas ajustables de 0-200 mm con sistema de freno.
- Conexiones hidráulicas superiores.
- Conexión del codo: DN100 (110 mm), DN90 (90 mm)
- Posición de la placa de accionamiento: Frontal
- Posición de la toma de agua: Superior
- Profundidad del tanque (mm): 80
- Profundidad mínima de fijación (mm): 107
- Rango de presión dinámico: 0,1 - 10 Bar
- Tipo de descarga predeterminado: Doble descarga 3/6 litros
Actualización de fabricación (ROCA):
ROCA ha actualizado recientemente el proceso de producción del modelo DUPLO, introduciendo ligeras variaciones respecto a versiones anteriores. Estos cambios afectan a la ficha técnica y a algunos elementos constructivos, como las patas, que pasan a ser de plástico técnico de alta resistencia, sin afectar a la funcionalidad, compatibilidad ni prestaciones del producto.
Roca, una de las marcas nacionales más importantes y reconocidas del mundo del baño, siempre ha sido sinónimo de calidad y buen diseño. Desde sus series más clásicas hasta sus conceptos más innovadores, todos los productos fabricados por Roca tienen en común la funcionalidad y practicidad, buscando siempre aportar un extra de confort y comodidad.










